Усиление железобетонных перекрытий
Усиление сборных железобетонных многопустотных плит
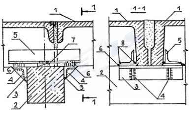
Усиление сборных железобетонных ребристых плит
Усиление железобетонных ребристых плит
Усиление сборных железобетонных ребристых плит покрытия
Усиление железобетонных плит покрытия
Усиление плит перекрытий крупнопанельных зданий
Усиление монолитных железобетонных плит
Усиление железобетонных плит
Усиление монолитных железобетонных перекрытий
Усиление монолитных безбалочных железобетонных перекрытий
Усиление сборных безбалочных железобетонных перекрытий
Усиление узлов опирания панелей перекрытий
Усиление узлов опирания панелей покрытий
Усиление платформенных стыков крупнопанельных домов
Устройство перекрытий из мелкоразмерных конструкций при реконструкции зданий и сооружений
Устройство перекрытий из крупноразмерных железобетонных конструкций при реконструкции зданий и сооружений
Усиление анкеровки железобетонных плит перекрытий в стенах
Установка анкерных связей с гайками | Установка анкерных связей с крюками | Установка анкерных связей со штырями |
Установка арматурных стержней | Установка анкерных связей | Установка арматурных каркасов |
Включение в совместную работу сборных железобетонных панелей покрытий и перекрытий
Способы временного усиления железобетонных плит перекрытий
Подведение стоек вблизи опор | Подведение стоек в середине пролета | Подведение подкосов |
Подвеска к разгружающим балкам | Подведение разгружающих балок | Установка подвесок |

Подведение металлических разгружающих балок снизу
Наращивание плит сверху при обеспечении сцепления поверхностей
Наращивание плит сверху при недостаточном сцеплении поверхностей
Подведение металлических разгружающих балок сверху
Установка дополнительной арматуры на полимеррастворе
Наклейка стеклоткани или листового металла на полимеррастворе
Поведение разгружающих металлических балок
Подведение двухконсольных разгружающих балок
Установка шпренгельных затяжек
Создание неразрезности установкой арматурных каркасов в пустотах
Установка предварительно напряженных элементов из листового металла
Установка арматурных каркасов з пустоты снизу с последующим их обетонированием
Наращивание сверху сборных ребристых плит при обеспечении сцепления поверхностей
Наращивание сборных ребристых плит при достаточном сцеплении поверхностей
Усиление сборных ребристых плит при значительных их повреждениях
Подведение металлических разгружающих балок
Установка дополнительной рабочей арматура
Подведение ребер из монолитного железобетона
Установка разгружающих металлических балок
Устройство наращивания в сжатой зоне в виде ребристой плиты
Устройство разгружающих монолитных железобетонных балок с раздвижкой плит
Установка предварительно напряженных элементов из прокатного металла
Установка шпренгельных затяжек в швах между плитами
Установка разгружающих стальных балок на консолях
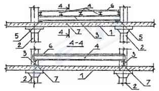
Подведение разгружающих балок (усиление продольных и поперечных ребер)
Подведение разгружающих балок (усиление продольных и поперечных ребер)
Подведение разгружающих балок (усиление продольных и поперечных ребер)
Подведение двухконсольных разгружающих балок (усиление продольных ребер)
Подведение разгружающих балок (усиление продольных и поперечных ребер)
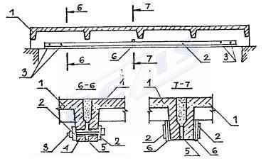
Установка шпренгельных затяжек (усиление продольных ребер)
Установка шпренгельных затяжек на поперечных ребрах
Установка предварительно-натяженных затяжек на поперечных ребрах
Подведение шпренгельных балок
Установка шпренгельных затяжек
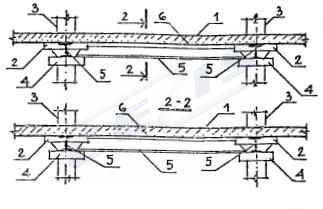
Создание неразрезности с помощью стальных полос
Установка затяжек из стальных полос
Установка разгружающих металлических балок сверху
Установка разгружающих металлических балок снизу
Устройство наращивания из монолитного бетона сверху
Создание неразрезности установкой скоб-коромысел
Установка шпренгельных затяжек
Установка шпренгельных затяжек в плитах, опертых по контуру
Наращивание монолитного слоя снизу
Наращивание монолитного слоя сверху с устройством железобетонных шпонок
Наращивание монолитного слоя сверху в виде ребристой плиты
Наращивание монолитного слоя сверху при обеспечении сцепления поверхностей
Наращивание монолитного слоя сверху при недостаточном сцеплении поверхностей
Подведение металлических разгружающих балок снизу
Устройство железобетонного наращивания снизу плиты при недостаточном сцеплении нового бетона со старым
Устройство железобетонного наращивания сверху плиты при недостаточном сцеплении нового бетона со старым
Устройство железобетонного наращивания сверху плиты при недостаточном сцеплении нового бетона со старым
Установка шпренгелей из стержневой арматуры (а.с. 1486591)
Установка металлических стержней на участках с трещинами (а.с. 1432169)
Замена плит с устройством железобетонных обойм для балок
Частичное разгружение, выполненное в железобетоне
Полное разгружение, выполненное в железобетоне
Полное разгружение, выполненное сверху перекрытия из прокатного металла
Полное разгружение, выполненное снизу перекрытия из прокатного металла
Замена существующего перекрытия новым
Подведение балочной клетки из прокатного металла
Замена существующего перекрытия новым
Переустройство существующего перекрытия в плиты, опертые по контуру
Переустройство существующего перекрытия в балочные плиты
Наращивание сверху с устройством шпонок
Устройство железобетонного наращивания в виде кесонной плиты
Полное разгружение существующего перекрытия с помощью балок из прокатного металла
Наращивание сверху с устройством железобетонных шпонок
Устройство балочной клетки из прокатного металла(полное разгружение)
Устройство разгружающей ребристой плиты сверху
Подведение разгружающих балок снизу
Устройство предварительно напряженной железобетонной обоймы для усиления капителей и колонн (А. с. 1162929)
Установка устройства для усиления капителей и колонн (А. с. 1399435)
Подведение столиков на сварке с закладными деталями
Подведение столиков на тяжах
Подведение столиков на тяжах
Подведение столиков на тяжах
Подведение столиков по типу "Коромысло"
Подведение столиков на болтах
Подведение столиков на держателях
Подведение столиков на хомутах
Подведение столиков на тяжах
Подведение столиков на скобах-хомутах
Подведение столиков на стяжных болтах
Подведение столиков на сварке с закладными деталями
Усиление узлов опирания панелей перекрытий
Усиление узлов опирания панелей перекрытий и стен
Усиление узлов опирания панелей перекрытий и стен
Усиление узлов опирания панелей перекрытий
Усиление опорных частей панелей перекрытий
Усиление опорных частей панелей перекрытий в случае нарушения анкеровки или обрыва рабочей арматуры
Ребристые вкладыши по железобетонным балкам
Сводчатые вкладыши по железобетонным балкам
Пустотные блоки по железобетонным балкам
Полнотелые вкладыши по железобетонным балкам
Плоские железобетонные плиты по металлическим балкам
Плоские железобетонные плиты по металлическим балкам
Плиты, заводимые в штрабы стен
Плиты с выпускными ребрами, заводимые в ниши и штрабы стен
Плиты, опирающиеся на пристенные балки и прогоны
Плиты, опирающиеся на пристенные балки и двухсторонние консоли
Плиты, опирающиеся на пристенные уголки
Балочные элементы, заводимые в штрабы стен
Установка анкерных связей с гайками
Установка анкерных связей с крюками
Установка анкерных связей со штырями
Установка арматурных стержней
Установка анкерных связей
Установка арматурных каркасов
Установка накладок на стяжных болтах
Устройство железобетоных шпонок
Установка арматурных скоб
Устройство железобетонного наращивания
Установка накладок на стяжных болтах
Устройство стяжных болтов
Устройство железобетонных шпонок
Установка стяжных хомутов
Подведение стоек вблизи опор
Подведение стоек в середине пролета
Подведение подкосов
Подвеска к разгружающим балкам
Подведение разгружающих балок
Установка подвесок